Телефон
Часы работы

ПН-СБ с 9:00 до 19:00 ч.

Проект бытовки – 3

Комплектация БТС:

Основание:
Полозья из обрезного бруса 100 х 150 мм. служат основанием деревянной бытовки. К полозьям крепятся поперечные лаги 40 х 100 мм.

Каркас:
Каркас деревянный. Состоит из обрешетки из бруса 50 х 50 мм., с дверными и оконными проемами, верхней обвязки, угловых стоек и несущих лаг пола и крыши 40 х 100 мм. 

Крыша:
Односкатная, стропила доска обрезная 40х100 мм., обрешетка доска необрезная 20 мм., покрытие из оцинкованного профилированного листа С8-04. 

Внешняя отделка стен:
Стены снаружи обшиты короткой вагонкой класс С вертикально.

Внутренняя отделка стен и потолка:
Стены и потолок обшиты ДВП -3 мм. (оргалит). 

Внутренние перегородки:
Каркасные, утепленные минеральной ватой. Расположение перегородок может изменяться Заказчиком произвольно.

Пол:
Лаги из обрезного бруса 40х100 мм. Черновой пол доска необрезная 20-22 мм., чистовой пол ДСП 16-20 мм. (опция: половая доска шпунтовка - 28 мм./36 мм.).

Двери:
Деревянные каркасные, обшиты вагонкой, размер - 800 х 1800 мм.

Окна:
Деревянные, две створки, одна глухая одна открывающаяся, остекленные с фурнитурой, размер - 800 х 800 мм. (При необходимости можно установить решетки и деревянные ставни.)

Утеплитель:
Пол, потолок и стены утепляются минеральной ватой URSA или KNAUF - 50 мм. и прокладывается в один слой техническая пленка.

Комплектация БТД:

Основание:
Полозья из обрезного бруса 100 х 150 мм. служат основанием деревянной бытовки. К полозьям крепятся поперечные лаги 40 х 100 мм.

Каркас:
Каркас деревянный. Состоит из обрешетки из бруса 50 х 50 мм., с дверными и оконными проемами, верхней обвязки, угловых стоек и несущих лаг пола и крыши 40 х 100 мм. 

Крыша:
Односкатная, стропила доска обрезная 40х100 мм., обрешетка доска необрезная 20 мм., покрытие из оцинкованного профилированного листа С8-04. 

Внешняя отделка стен:
Стены снаружи обшиты длинной вагонкой класс В камерной сушки горизонтально.

Внутренняя отделка стен и потолка:
Стены и потолок обшиты вагонкой класс В камерной сушки вертикально. 

Внутренние перегородки:
Каркасные, утепленные минеральной ватой. Расположение перегородок может изменяться Заказчиком произвольно.

Пол:
Лаги из обрезного бруса 40х100 мм. Черновой пол доска необрезная 20-22 мм., чистовой пол ДСП 16-20 мм. (опция: половая доска шпунтовка - 28 мм./36 мм.).

Двери:
Деревянные каркасные, обшиты вагонкой, размер - 800 х 1800 мм.

Окна:
Деревянные, две створки, одна глухая одна открывающаяся, остекленные с фурнитурой, размер - 800 х 800 мм. (При необходимости можно установить решетки и деревянные ставни.)

Утеплитель:
Пол, потолок и стены утепляются минеральной ватой URSA или KNAUF - 50 мм. и прокладывается в один слой техническая пленка.

НАИМЕНОВАНИЕ ЦЕНА
Покрытие пола линолеумом, 1 кв. м. 400 руб.
Электропроводка в кабель канале ПВХ, 2 люминесцентных светильника, 2 розетки, автоматы 10-16 А. 9000 руб.
Деревянные открывающиеся ставни на одно окно 5000 руб.
Решетка металлическая на одно окно 3000 руб.
Обивка входной двери оцинкованным листом 2500 руб.
Нары деревянные (одноярусные, двух ярусные) 1 сп. м. 3000 руб.
Электрообогреватель конвекторный, 1,5 кВт. 5200 руб.
Установка дополнительного окна  3000 руб.
Установка дополнительной перегородки 5000 руб.
Установка дополнительной двери 3000 руб.
Двускатная крыша 3500 руб.
Двойное остекление одного окна 500 руб.
Врезка замка в дверь, 1 шт. 1500 руб.
Выезд бригады для сборки бытовки на объекте 25000 руб.

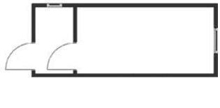
Заказать или купить бытовку деревянную проект - 3 с доставкой и выгрузкой от компании Модуль. Бытовка деревянная утепленная одна комната и тамбур 6х2,3м.

Доставка

Доставка бытовок длина до 6 м.: г.Москва в пределах МКАД - 12000 руб.
(далее 100 руб. за каждый км.)

Доставка модульных здании рассчитывается индивидуально на каждое здание.

Подробнее
Доставка

ОСТАВЬТЕ ЗАЯВКУ НА КОНСУЛЬТАЦИЮ

ВЫ МОЖЕТЕ ОТПРАВИТЬ СВОЙ ПРОЕКТ НА РАСЧЕТ НАШИМ СПЕЦИАЛИСТАМ!

Контакты

Адрес: 105203, г. Москва, ул. 15-я Парковая, д. 16А
Тел.: +7 (495) 971-03-48
WhatsApp: +7(901) 547-63-48
Почта: info@natalika-studio.ru
График: с 9:00 до 19:00 ч. / ВС выходной
Адрес: 143103, Московская обл., г. Руза, ул. Социалистическая, д. 79
Тел.: +7 (495) 971-03-48
WhatsApp: +7(901) 547-63-48
Почта: modul-st@ya.ru
График: ежедневно с 10:00 до 19:00 ч.
ПРОИЗВОДСТВО схема проезда
Адрес: 143103, Московская обл., г. Руза, ул. Социалистическая, д. 79
Почта: info@natalika-studio.ru
График: ежедневно с 10:00 до 19:00 ч.